SONSET
Bar de vinos & spritz
La abstracción del medio natural, el desierto, SONSET como homenaje al paisaje que lo rodea.
La Baja California Sur como motivo de inspiración formal y el convivio como motivo de función y ambientación
Ubicación:
La Paz, Baja California Sur, MéxicoFecha:
2023
Diseño y Obra:
Dirección Arq. Luis Alberto Parra Unzon
Residencia Arq. Anayanzi Uribe Aguilar
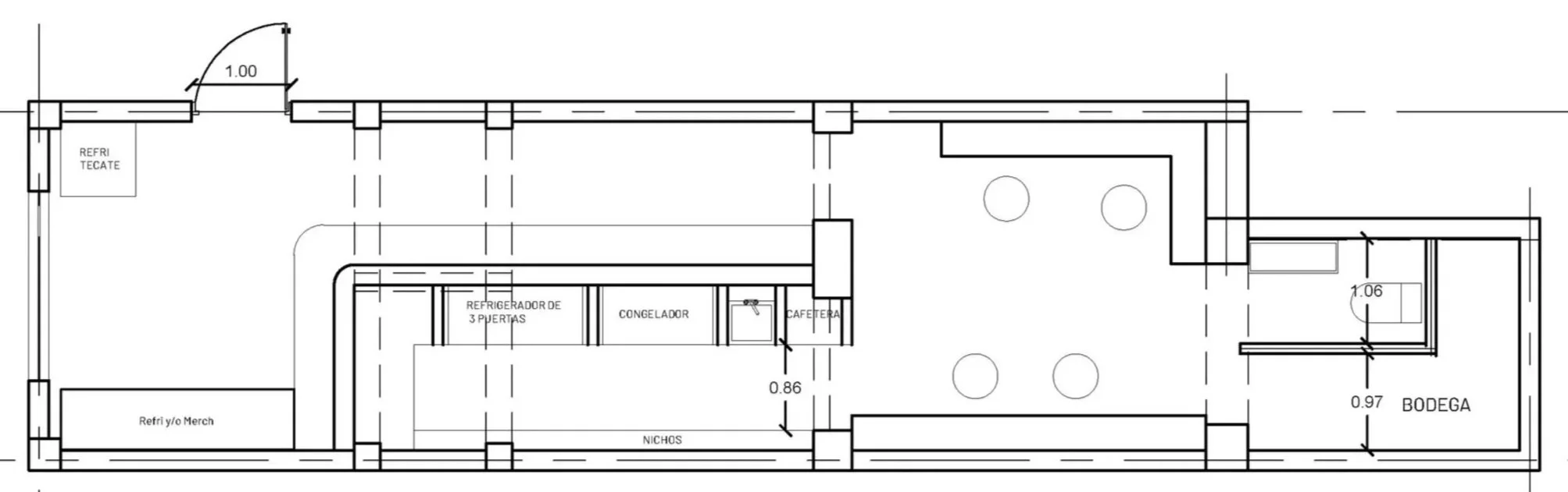
Plano general.
A partir de tener un local 3.50 metros de ancho x 11.90 metros de fondo. Distribuimos el área en 3 momentos.
El acceso recepción.
La barra como motivo principal de estancia.
El fondo como área privada.
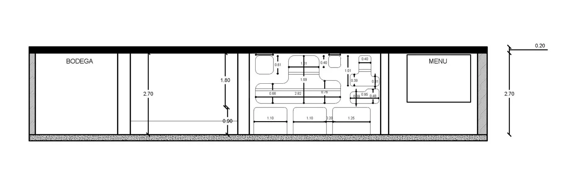
Sección de nichos
