Luciernaga
Based on the principles of self-sufficiency, sustainability and ecology, the “Luciernaga” project takes “the environment” as its main element. Understanding the relationship between architecture and living beings.
Ubicación:
Vale de Moses, Portugal.Fecha
2021
Design:
Arq. Luis Alberto Parra Unzon
Arq. Rafael Aguiñiga
Arq. Eduardo Martinez Moreno
The proposal
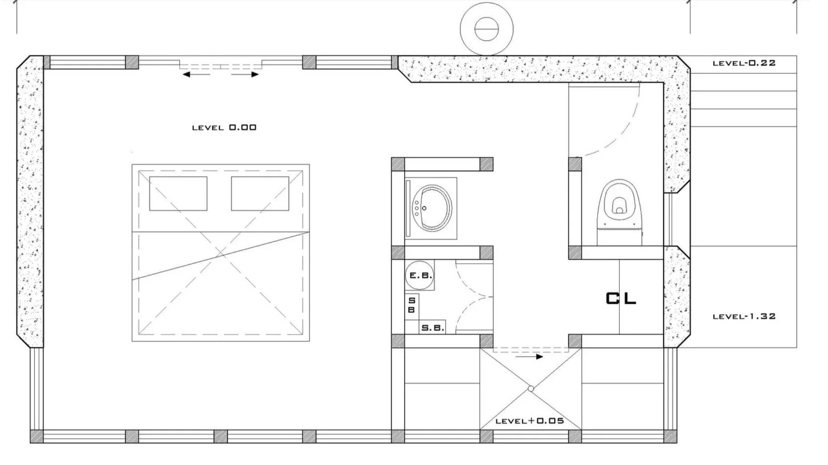
Program
1. Ground level : Cistern, pump and organic waste,
2. First level : Bedroom, Dray toilet, Sink, Closet, Service storage, Bath & sauna.
3. Roof: Photovoltaic Cells, Atmospheric Water Capture.
Needs:
· System of 2 Photovoltaic Panels, supplying the water pump, boiler, sauna system and light.
· Atmospheric water generator, system that obtains a daily average of 40 liters through the humidity of the environment.
Luciernaga, as every project produces waste in relation to its own operation: gray water, lighting and organic waste, these products are used for hydration and fertilization of the soil near each prototype. This detail will cause potential microclimates for the Valley at the rate that the capsules are inhabited.
Sensations:
Interior - Exterior.
Inspired by the slopes of the Vale de Moses mountain range, Luciernaga evokes the reciprocal experience of inhabiting the interior with empathy to the exterior. The materials and their textures promote intimacy through the senses, their harmonic circulation accentuates the function of the space and its modulated design creates an appreciation of the landscape
The prototype
Based on the balance of its elements.
Rock basement.
Wood floor, divisions and roof.
Rammed Earth main walls.
The orientation of the project is parallel to the contour lines, obtaining versatility to locate it in any area of the Valley. "Luciernaga" offers two areas, a rest area and a service area.
The rest area consists of a bed in the center generating harmony in the space, while the toilet area is divided by dividing and structural wooden elements. Its views are composed of poles of wood, glass and compacted earth, which direct a complete view towards the landscape.
The Construction
The concept of construction these days is adaptable to the context, teamwork favors human and personal collaboration, develops community and provides economic profitability, being for VALE de MOSES an option for its own growth.
The modular design, the materials and the context favor the construction of “Luciérnaga” through social dynamics, such as workshops and work sessions that VALE DE MOSES itself will be able to offer.
