Complejo SAMDAR
Casa para visitas y huéspedes.
Ubicación:
Cerritos, Baja California Sur, México
Fecha:
2024
Diseño:
Dirección: Arq. Luis Alberto Parra Unzon
Proyección: Arq. Anayanzi Uribe Aguilar
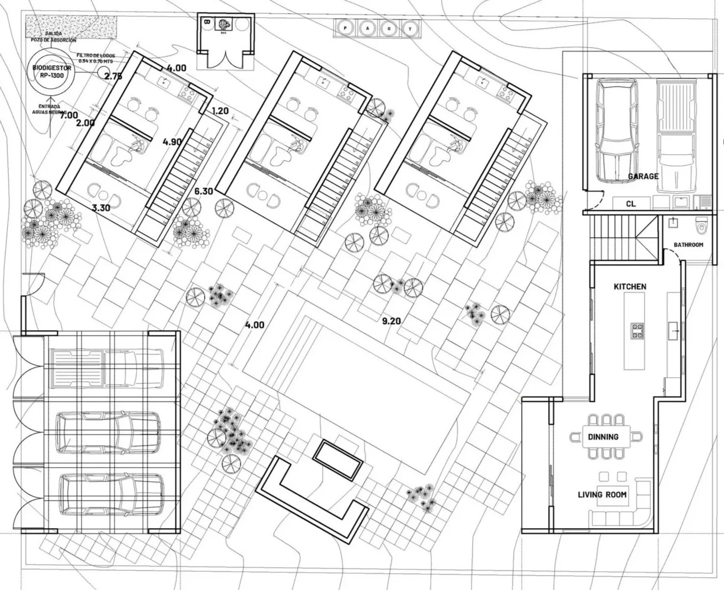
Programa Arquitectónico
3 Estudios completos
Planta Baja Área Social
Planta Alta Área Recamara
Alberca
Cochera 3
Casa Completa
Sala / cocina / comedor
3 Reacamaras
Cochera 2 Carros
Lavanderia
