Centro Medico Pediatrico
Proyecto arquitectónico.
Ubicación:
El sargento, Baja California Sur, México.
Fecha:
2020
Diseño y obra:
Dirección: Arq. Luis Alberto Parra Unzon
Dibujo: Arq. Rafael Aguiñiga
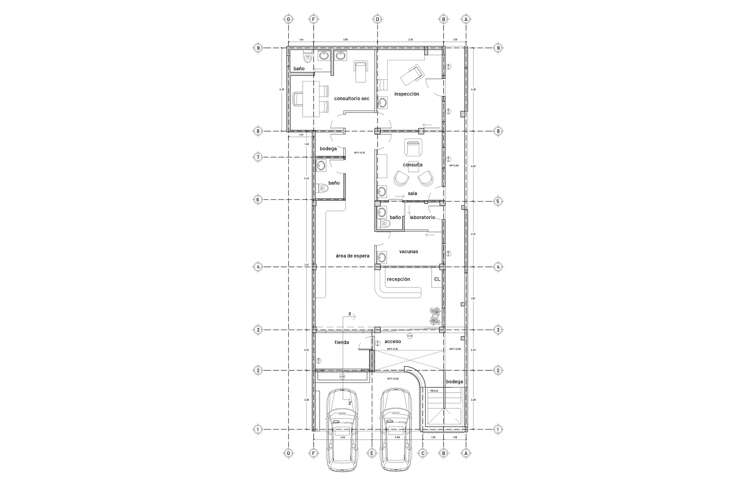
Plano general
PLANTA BAJA / DISTRIBUCIÓN
Fachada
Recepción
Consultorios
Distribuidor
Área de acceso
Escalera
